Casa las Gaviotas
El proyecto consistió en desarrollar una vivienda para una pareja, en un sector urbano de Pichilemu, Chile, que tuviera la facultad de ser ampliable, y con un presupuesto acotado. Los factores más relevantes a considerar fueron entonces, la facilidad de construcción, disponibilidad de material y el tiempo de mano de obra. Para esto, se propuso un sistema constructivo en madera de dimensiones comerciales, que facilitara la eficiencia en la construcción.
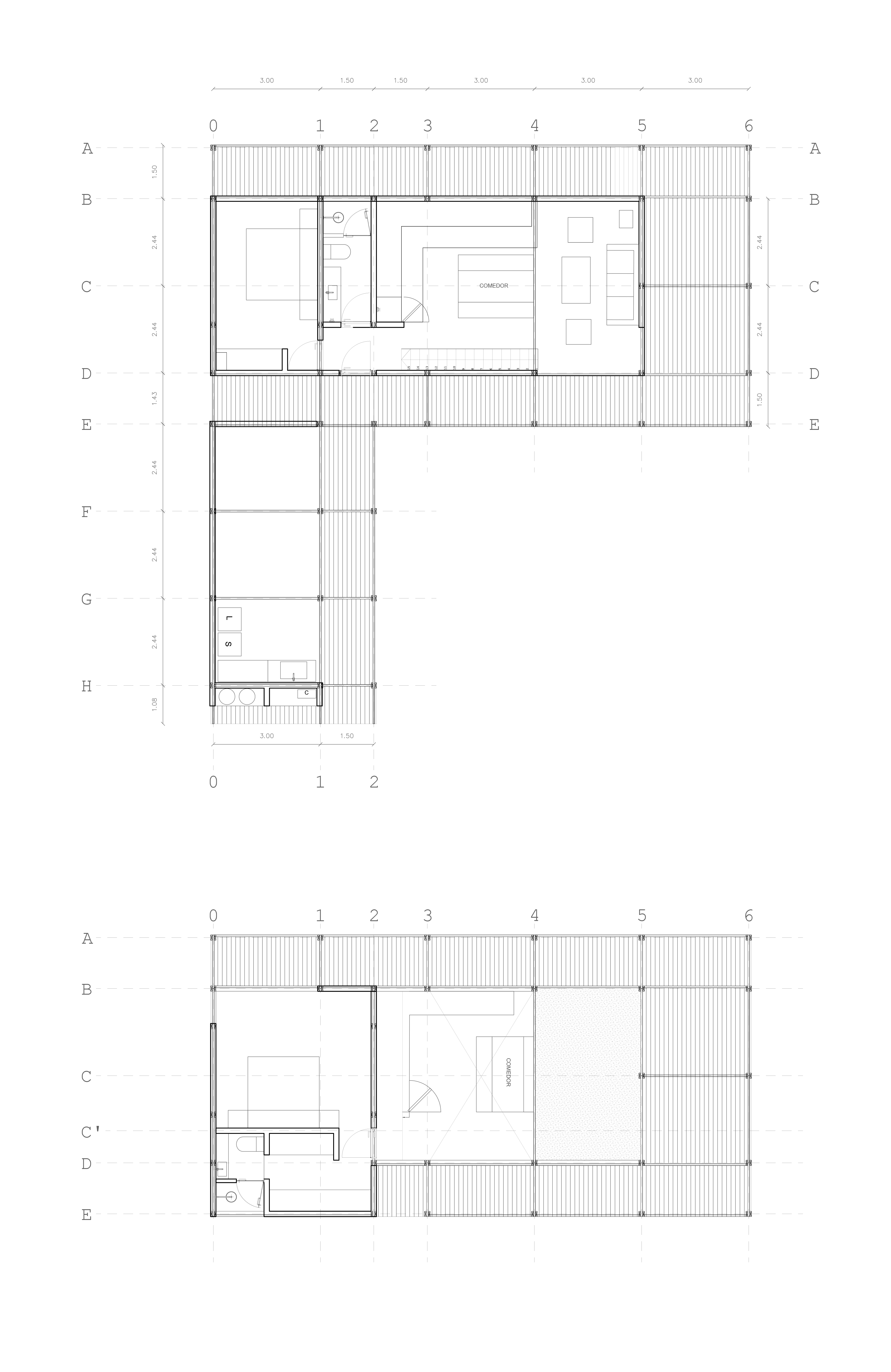
El resultado fue el diseño en base a una grilla estructural, que contemplara tanto las dimensiones de la madera como de los tableros estructurales para confinar las piezas, y obtener así un adecuado comportamiento estructural aprovechando al máximo el material (minimizando los cortes y evitando residuos) Se desarrolló una escuadría en planta de 4,88 mts interior, por 12,00 mts de largo, dividiendo espacios en 3,00 mts según las dimensiones comerciales de la madera para generar las áreas habitables. Se consideró una estructura en base a encuentros a media madera, y a ejes estructurales, formando marcos rígidos. Estos, posicionados en forma sucesiva conforman la estructura total de la vivienda. Además se sumaron al sistema algunas vigas y pilares de sobre medida comercial, con madera de origen local, para lograr solidez estructural en ciertas luces más grandes que se incorporaron.
Los espacios de la casa se pensaron integrados, siendo el estar-cocina el articulador de todos éstos, aquí se genera el mayor uso y se originan todos los flujos de la casa. Se posibilita gracias a la disposición de dos muebles importantes; la escalera y la cocina, muebles principales de la casa.
El emplazamiento se ordena disponiendo el volumen principal paralelo al mar, y proyectando la bodega de faena como un elemento definitivo, que pueda ser eventualmente una ampliación de la casa, y a la vez una contención del viento sur predominante en el lugar. Es así como la casa se integró a su entorno generando espacios hacia el norte, protegidos del viento sur y con asoleamiento garantizado.
El resultado fue el diseño en base a una grilla estructural, que contemplara tanto las dimensiones de la madera como de los tableros estructurales para confinar las piezas, y obtener así un adecuado comportamiento estructural aprovechando al máximo el material (minimizando los cortes y evitando residuos) Se desarrolló una escuadría en planta de 4,88 mts interior, por 12,00 mts de largo, dividiendo espacios en 3,00 mts según las dimensiones comerciales de la madera para generar las áreas habitables. Se consideró una estructura en base a encuentros a media madera, y a ejes estructurales, formando marcos rígidos. Estos, posicionados en forma sucesiva conforman la estructura total de la vivienda. Además se sumaron al sistema algunas vigas y pilares de sobre medida comercial, con madera de origen local, para lograr solidez estructural en ciertas luces más grandes que se incorporaron.
Los espacios de la casa se pensaron integrados, siendo el estar-cocina el articulador de todos éstos, aquí se genera el mayor uso y se originan todos los flujos de la casa. Se posibilita gracias a la disposición de dos muebles importantes; la escalera y la cocina, muebles principales de la casa.
El emplazamiento se ordena disponiendo el volumen principal paralelo al mar, y proyectando la bodega de faena como un elemento definitivo, que pueda ser eventualmente una ampliación de la casa, y a la vez una contención del viento sur predominante en el lugar. Es así como la casa se integró a su entorno generando espacios hacia el norte, protegidos del viento sur y con asoleamiento garantizado.
Autores:
Arq. Antonio Riquelme
Arq. Juan Jose Mena
Ubicacion:
Punta de Lobos, Pichilemu, Chile
Superficie:
90 + 30 mts2
Año:
2020
Fotografías:
Jose Antonio Miranda
Arq. Antonio Riquelme
Arq. Juan Jose Mena
Ubicacion:
Punta de Lobos, Pichilemu, Chile
Superficie:
90 + 30 mts2
Año:
2020
Fotografías:
Jose Antonio Miranda














